Cobbler Apartments

Situated in the same building as the upcoming Heritage hotel, the Cobbler Apartments are for those who love timeless classical design.

Nestled in the heart of Marton with Broadway on your doorstep, these three apartments ranging from 50-64sqm, each with their own allocated parking space, allow for a secure “lock up and leave” lifestyle with plenty of character.

Cobbler Apartments

Floor plans shown are not to scale and subject to change.

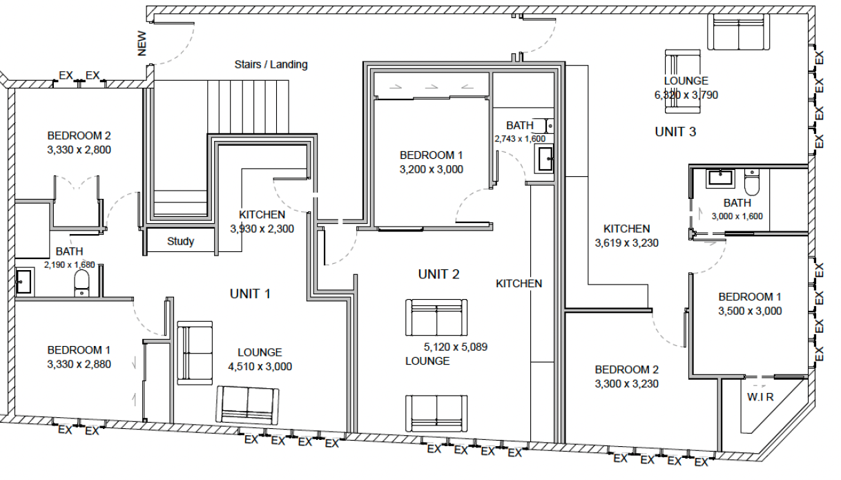
Apartment One

  • 2 Bedrooms

  • 1 Bathrooms

  • 55.70sqm

  • 1 Carpark

Apartment Two

  • 1 Bedroom

  • 1 Bathroom

  • 50.48sqm

  • 1 Carpark

Apartment Three

  • 2 Bedrooms

  • 1 Bathroom

  • 64.23sqm

  • 1 Carpark

  • On-site carparking at rear of site.

  • Ground floor access from street front.