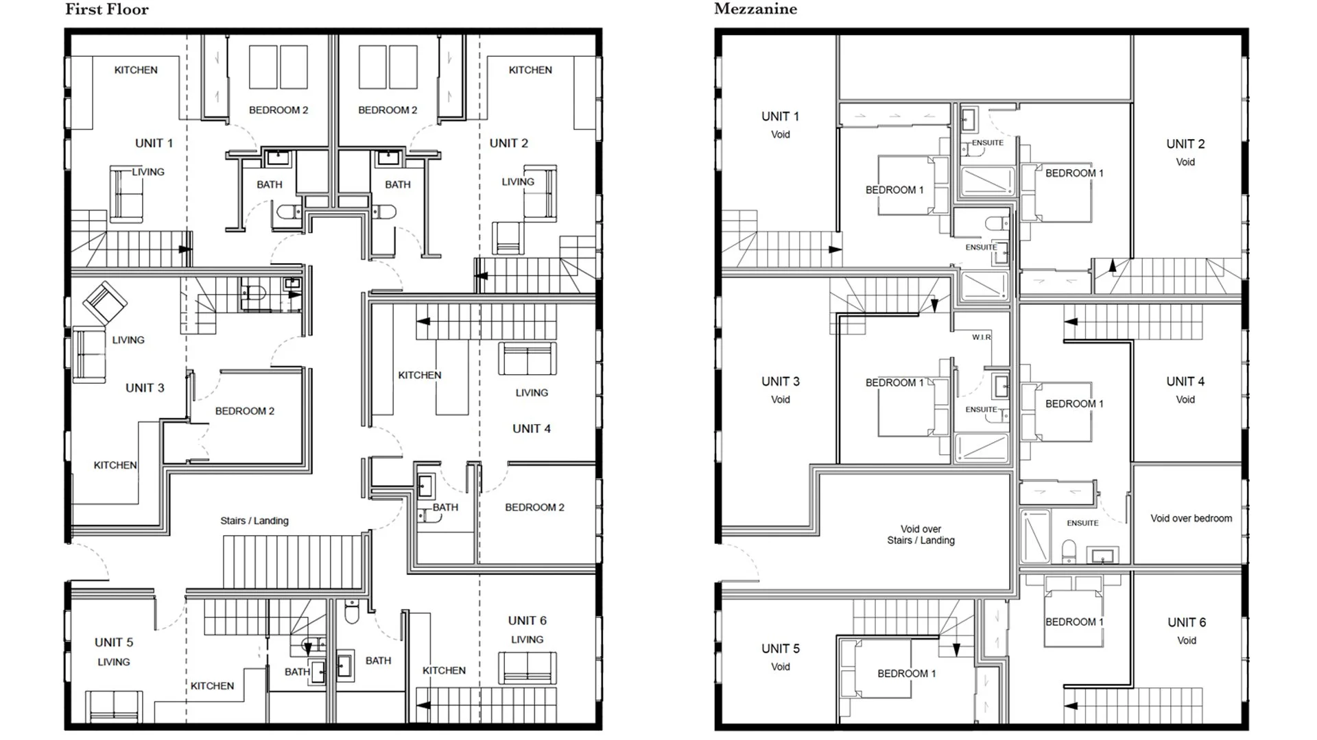
Abraham & Williams Apartments

Six apartments in the heart of Marton, in Bold brick on Broadway with Heritage frontage.

Ranging from 1-2 bedrooms and 40-70 square metres. Each with one allocated parking space.

Apartment Five

  • 1 Bedrooms

  • 1 Bathrooms

  • 34sqm

  • 1 Carpark

Apartment Six

  • 1 Bedrooms

  • 1 Bathrooms

  • 45sqm

  • 1 Carpark

Apartment Two

  • 2 Bedrooms

  • 2 Bathrooms

  • 70sqm

  • 1 Carpark

Apartment One

  • 2 Bedrooms

  • 2 Bathrooms

  • 64sqm

  • 1 Carpark

Apartment Four

  • 2 Bedrooms

  • 2 Bathrooms

  • 64sqm

  • 1 Carpark

Apartment Three

  • 2 Bedrooms

  • 2 Bathrooms

  • 58sqm

  • 1 Carpark